Lake Washington Apartments

Hoopa, CA

El proyecto de Vivienda Multifamiliar Asequible en Lake Washington es un desarrollo visionario ubicado en el dinámico vecindario de Southport en West Sacramento.

Loading map...

Airport Rd, Hoopa, CA 95546, USA

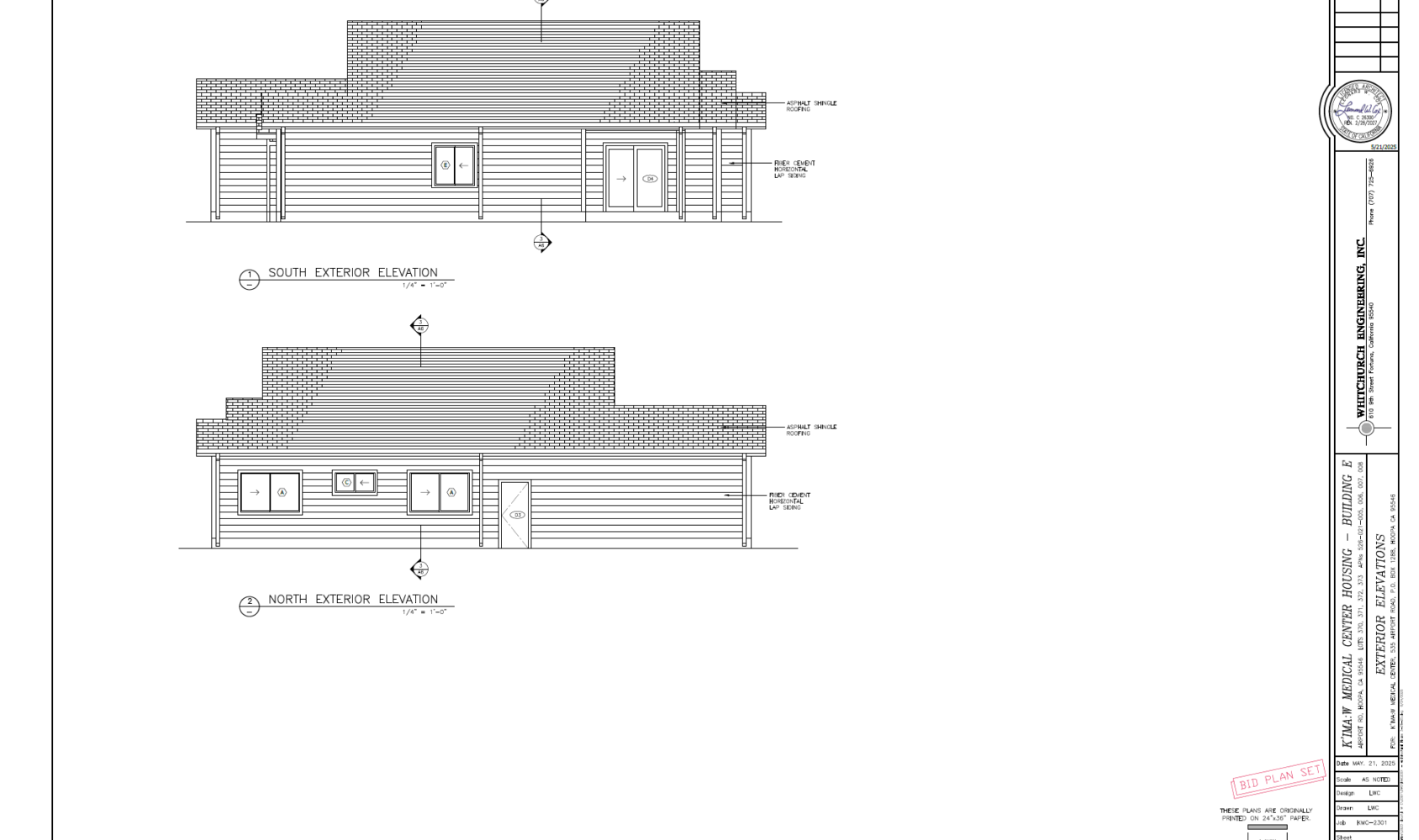
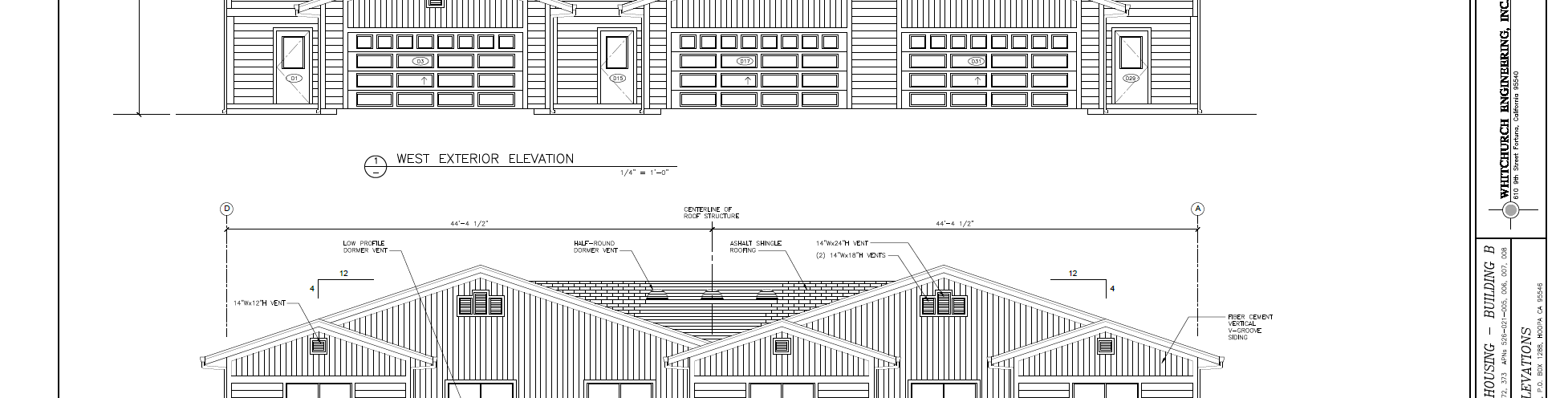
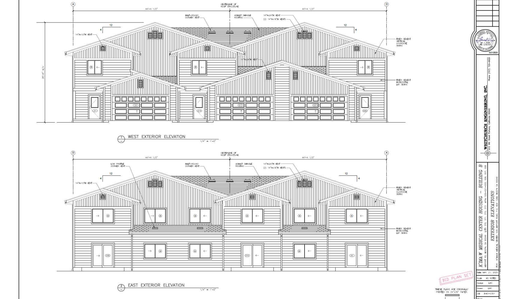
MULTI-FAMILY AFFORDABLE HOUSING 

Ubicado en el vecindario de Southport en West Sacramento, el proyecto de Vivienda Multifamiliar Asequible en Lake Washington ofrece 152 unidades de vivienda asequible distribuidas en 5 pisos. El edificio, con un área de 147,574 pies cuadrados, incluye 42 unidades de un dormitorio, 70 de dos dormitorios y 40 de tres dormitorios, con una unidad reservada para el administrador del edificio. El proyecto cuenta con 159 espacios de estacionamiento, que incluyen estaciones de carga para vehículos eléctricos, espacios accesibles según la normativa ADA y facilidades para estacionamiento de bicicletas. El desarrollo se compone de dos edificios en forma de L conectados por puentes, creando un patio central. Cada sección del edificio incluye un vestíbulo, un ascensor y escaleras, con alas de cinco pisos en dirección este-oeste y alas de cuatro pisos en dirección norte-sur. Las torres de balcones ofrecen espacios privados al aire libre mejorando el atractivo del edificio a nivel de la calle. Este proyecto aborda las necesidades de vivienda asequible y fomenta la creación de una comunidad en el vecindario de Southport en West Sacramento mediante un diseño cuidadoso y comodidades centradas en los residentes.

Highlights

Hace parte del vecindario.

El patio, rodeado por dos edificaciones en forma de L, se transforma en un oasis íntimo para sus residentes.

La Comunidad Es la Prioridad

Similar Projects