Madrone Place

San Jose, CA

Architectural rendering of a modern, multi-story apartment building with a mix of dark and light paneling. The street view includes trees, parked cars, and people walking, set against a clear blue sky.

A 154-Unit Transit-Oriented Affordable Housing Development in SAN JOSE, CA.

Loading map...

777 W San Carlos St, San Jose, CA 95126

MultiFamily Affordable HousingĀ 

Located on a 1.2-acre infill site within the San Jose Diridon Station Area Plan (DSAP), this distinctive 100% affordable housing project is currently under construction at the crossroads of innovation, situated near the envisioned Google transit village, upcoming BART, and the future high-speed rail. It responds to the growing demand for affordable housing in this emerging urban hub, fostering the city's vision for a dynamic, walkable community.

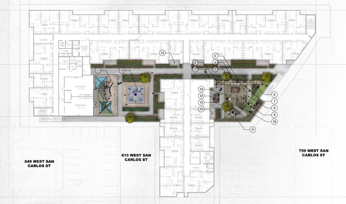
The six-story podium building, now taking shape, will house 154 units arranged around two second-floor courtyards. These landscaped spaces are being designed to serve dual purposes, with one catering to children's play and the other offering a serene escape and comfortable space for gatherings. The units, which will feature large private balconies, range in size from studios to three-bedrooms to serve the diverse needs of individuals and families. The ongoing construction prioritizes the seamless integration of the building into the existing neighborhood context. This involves carefully implementing the selected building materials, colors, massing, and an architectural style that will harmonize with the surrounding environment, ensuring a cohesive and unobtrusive presence within the established community.

Construction is progressing on the suite of amenities including on-site affordable daycare, fitness rooms, support services facilities, and community meeting rooms. Sustainability remains at the forefront, as the 100% electric building will incorporate solar, advanced energy-efficient appliances, water-wise design strategies, and state-of-the-art green building practices.

Highlights

Located within San Jose's Diridon Station Area Plan, near the planned Google transit village, upcoming BART, and future high-speed rail, making it a well-connected urban hub.

Features two second-floor courtyards - one for children's play and another for gatherings, with all units including private balconies and careful integration into the neighborhood's aesthetic.

A 100% electric building incorporating solar power, energy-efficient appliances, water-wise design, and modern green building practices.

A lively courtyard features people socializing around seating areas under string lights. Greenery and modern architecture surround the space, creating a welcoming atmosphere.
A modern apartment complex with green and white exteriors. The multi-story buildings feature balconies and large windows. Trees line the sidewalks, and there are parked cars and a sloped driveway leading to the entrance.
A modern multi-story apartment building with balconies, large windows, and surrounding trees. Pedestrians walk along the sidewalk while cars pass by on the street in the foreground.
A detailed architectural floor plan showing three addresses: 848, 815, and 759 West San Carlos Street. The layout includes labeled rooms and outdoor spaces with trees, pathways, and play areas.
A detailed architectural floor plan of an apartment building, showing various rooms, corridors, and communal spaces. The layout includes residential units and shared amenities, designed with precise measurements and annotations.
Blueprint of a buildings ground floor layout with parking spaces, entry points, and labeled rooms. The plan includes detailed measurements and annotations for various sections, with arrows indicating directions and access routes.
A map illustrating three zones: Northern, Central, and South of Diridon. It shows areas for commerce, entertainment, transit, and mixed-use residential spaces. Arrows and lines indicate routes and connections between these zones.

Similar Projects